CANTACUZINO spatiu 300 mp plus anexe si parcare -1500 eu/l  

Jud. Prahova, Localitate Ploiești
Pret: 1 500 €
1 500 €
Sursă: ImobilPro

Caracteristici
Categorie: Spatii
Tip tranzacție: Închiriere
Demisol
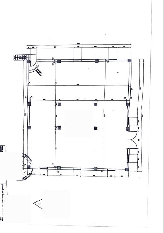
Suprafață utilă: 320 m2
Suprafață construită: 380 m2
Structură rezistență: Beton
Număr băi: 2
Grad finisaj: Finisat
An construcție: Inainte de 1997
Parcare
Aer condiționat
Geamuri termopan
Gresie
Izolație termică
Apă
Gaz
Curent electric
Canalizare
Microcentrală
Climatizare
Descriere

Zona CANTACUZINO - spatiu 300 mp open space,  la care se adauga separat anexe ( 2 vestiare si 2 grupuri sanitare )  si curte proprie pentru parcare circa 8-10 autoturisme  . Spatiul este  pretabil birouri , salon , cabinet , magazin , depozitare etc . Utilitati : electricitate 220, apă, gaz, încălzire cu centrala proprie , AC, internet,  etc .

Acces facil și vizibilitate excelentă într-o zonă activă a orașului.

Liber din 01.01.2026

Prețul inchiriere : 1500 euro , 1 luna  garanție 



Precizati ca ati vazut oferta cu ID-ul: 5079


fata poza
Reoer Grup

0720 595545 0


Trimite un mesaj
Am citit și sunt de acord cu termenii și condițiile acestui website.


Magnolia Office Sibiu

Chirii Sibiu
Eurosib Imobiliare