PAULESTII NOI - vila 2025, P+1 , ter 490 mp la 255000 euro  

Jud. Prahova, Localitate Păulești
Pret: 255 000 €
255 000 €
Sursă: ImobilPro

Caracteristici
Categorie: Case
Tip tranzacție: Vânzare
Suprafață utilă: 148 m2
Suprafață construită: 210 m2
Structură rezistență: Beton
Număr etaje: 2
Număr băi: 4
Număr balcoane: 2
Grad finisaj: Ultrafinisat
An construcție: Dupa 2010
Suprafață teren: 490 m2
Front stradal: 29 m
Geamuri termopan
Faianța
Gresie
Parchet
Izolație termică
Acoperiș
Apă
Gaz
Microcentrală
Descriere

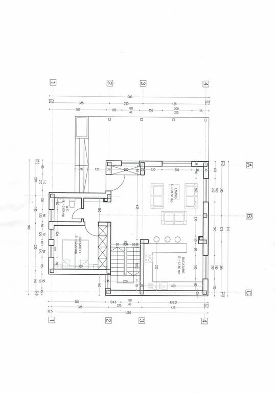
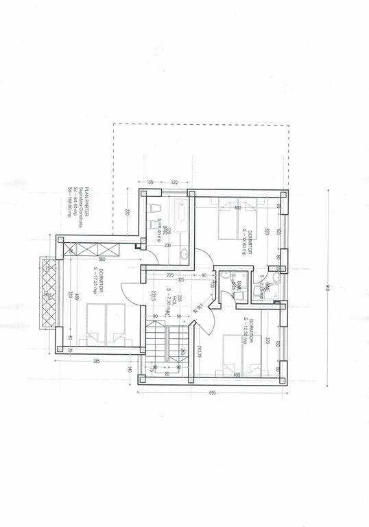
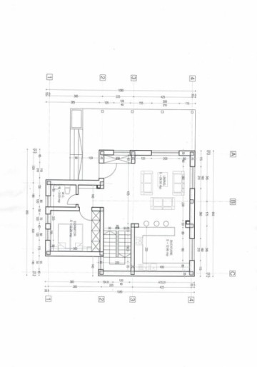
PAULESTII NOI - vila constructie 2024-2025 cu teren aferent imobil  in suprafata totala de 490 mp cu deschidere de 29 ml . Casa este constructie noua din cadre beton si caramida tip Protherm, P+1 avand o suprafata desfasurata de 198 mp, amprenta la sol de 112 mp  si o suprafata construita la etaj de 98 mp, compartimentata astfel :

PARTER : living 29 mp cu acces la terasa acoperita in suprafata de 27 mp, bucatarie 12,8 mp, dormitor / birou 12,2 mp, grup sanitar 3 mp,

Etaj : dormitor matrimonial 17,2 mp, baie proprie 6.4 mp, acces balcon in suprafata de 2,5 mp, hol 7.3 mp si 2 dormitoare in oglinda avand fiecare osuprafata de 12,8 mp si fiecare cu acces in baie proprie de 2,5 mp fiecare, bai utilate cu cabina dus, wc si chiuveta.

Casa dispune de izolatie exterioara polistiren, tamplarie PVC  Salamander cu geam tripan, usi interioare Porta doors, incalzirea se realizeaza cu centrala termica si calorifere otel. 

Pretul cu TVA inclus este de 255000 euro .



Precizati ca ati vazut oferta cu ID-ul: 5004


fata poza
Reoer Grup

0720 595545 0


Trimite un mesaj
Am citit și sunt de acord cu termenii și condițiile acestui website.


Magnolia Office Sibiu

Chirii Sibiu
Eurosib Imobiliare